7
$40 Rent
Listed 10 hours ago
B2-A/B/C - 432 KING STREET E
· 0
· 0.0
· 0
· 5614
Key Facts
Key facts for B2-A/B/C - 432 KING STREET E
Property Type
Commercial
Parking
Garage: No, 0 parking
MLS #
X12441065
Size
5614 sqft
Basement
-
Listed on
-
Lot size
-
Tax
-
Days on Market
-
Year Built
-
Maintenance Fee
-
Description
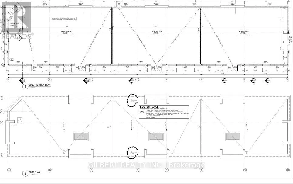
NEWLY BUILT RETAIL OPPORTUNITY AVAILABLE FOR LEASE IN COBOURG. HIGH VISIBILITY CORNER (KING ST E/BROOK RD N) ANCHORED BY TIM HORTON'S NEXT TO RESIDENTIAL. THIS NEW 5,614 SF DEVELOPMENT CAN BE PARTITIONED INTO 2 or 3 SMALLER UNITS. DESIRABLE DC-30 ZONING PERMITTING A WIDE RANGE OF RETAIL USES. AMPLE ...PARKING WITH DRIVE THROUGH & PATIO SPACE AVAILABLE. BUILDING SHELL NOW COMPLETE ALLOWING FOR ANY TENANT LAYOUT OR CONFIGURATION TO BE ACCOMODATED. DRIVE THROUGH AVAILABLE. (id:10452)
Similar Properties (No results)
Listing courtesy of: GILBERT REALTY INC.
This REALTOR.ca listing content is owned and licensed by REALTOR® members of The Canadian Real Estate Association.